
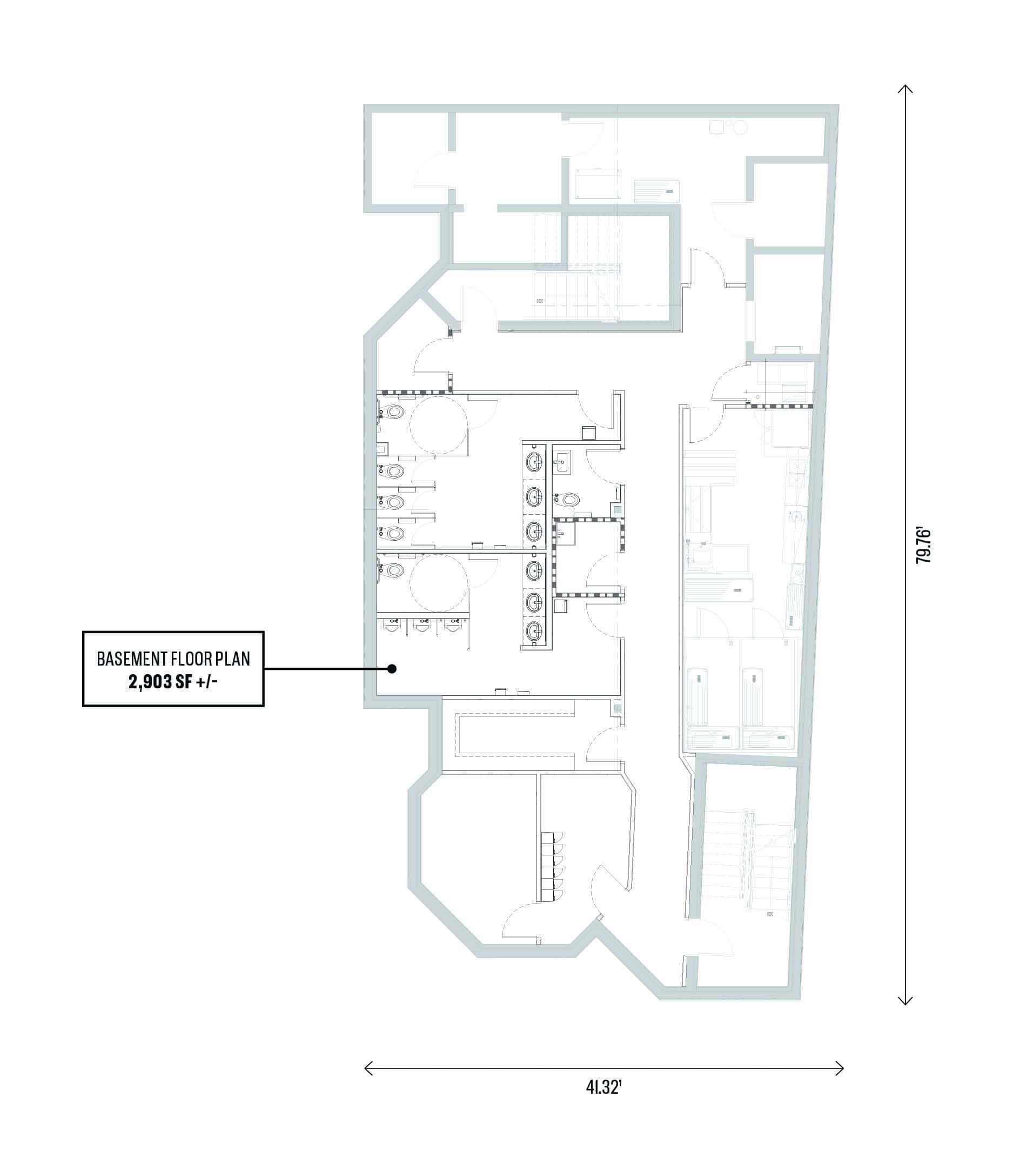
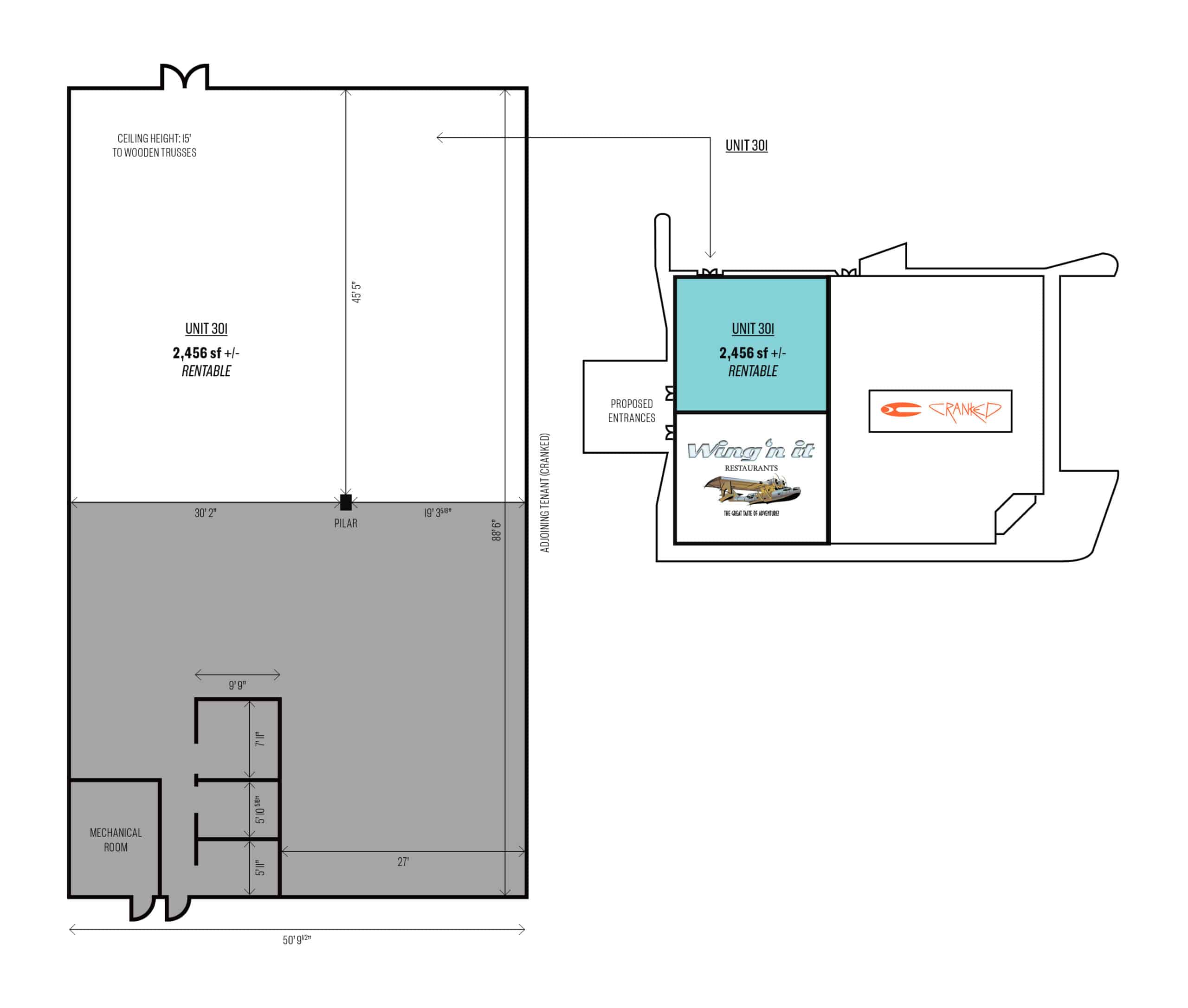
- Gross rentable area – 1,680 +/- SQ.FT.
- Office conversion to residential by Alston Properties expected completion summer 2026
- Ready for fixturing March 2025
- Unit includes a private washroom
- Ideal uses include; office, pet care, retail, customer service, healthcare service, and studio.
Documents
add to favorites 0
Property Id :
Amenities and Features
Floor Plans
Similar Listings
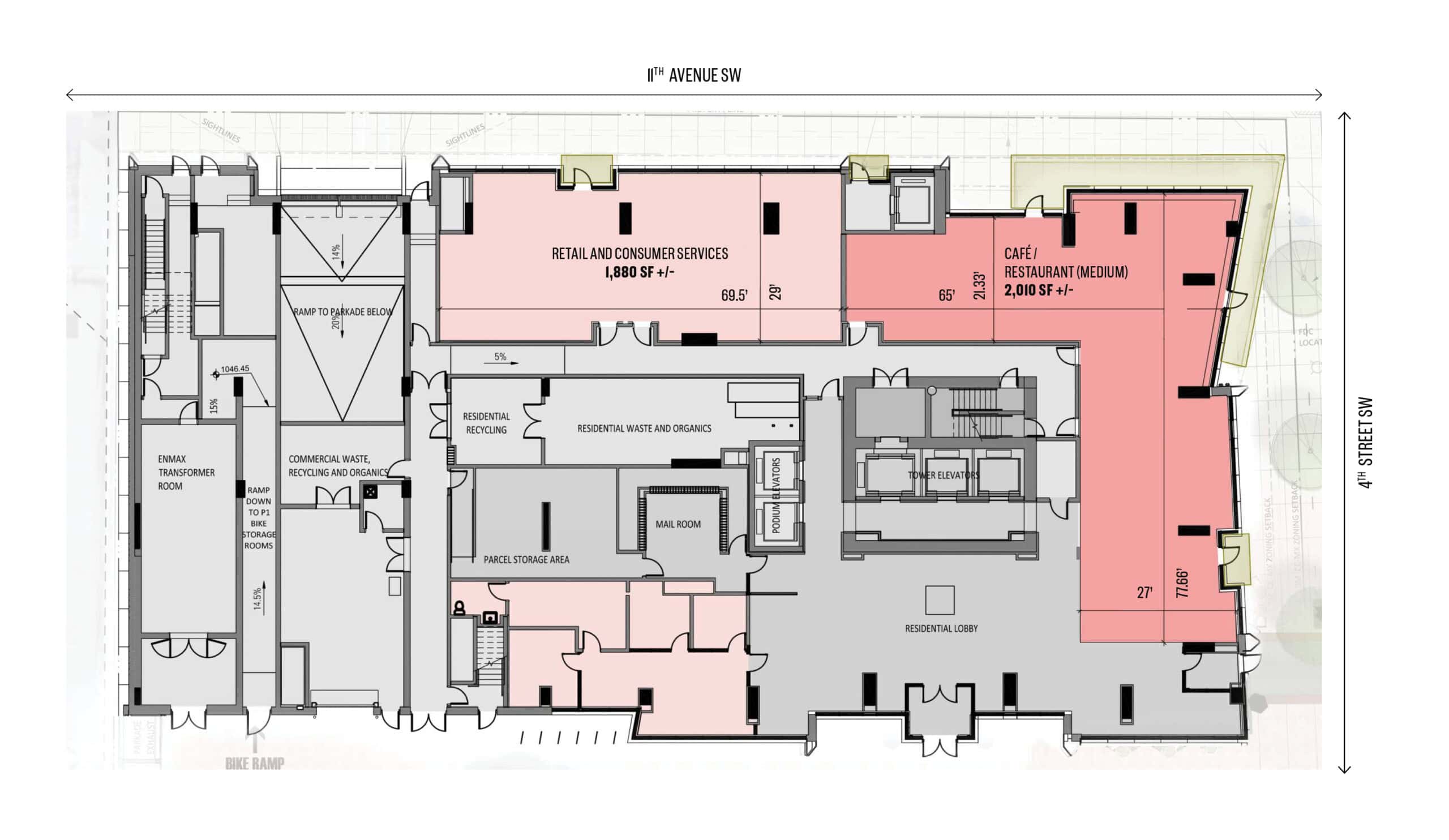
AVLI – 1020 9th Avenue SE
1020 9th Avenue SE retail space available for lease
1020 9th Avenue SE retail space available for lease




